STRATEGIC. ACCESSIBLE. EFFICIENT.

Introducing one of the Puget Sound's newest Class A industrial facilities for lease in the South Tacoma submarket.

Available Now





This modern industrial facility offers high-performance features including LED lighting throughout, ESFR sprinkler system, and a 7-inch reinforced concrete slab for heavy-duty operations.

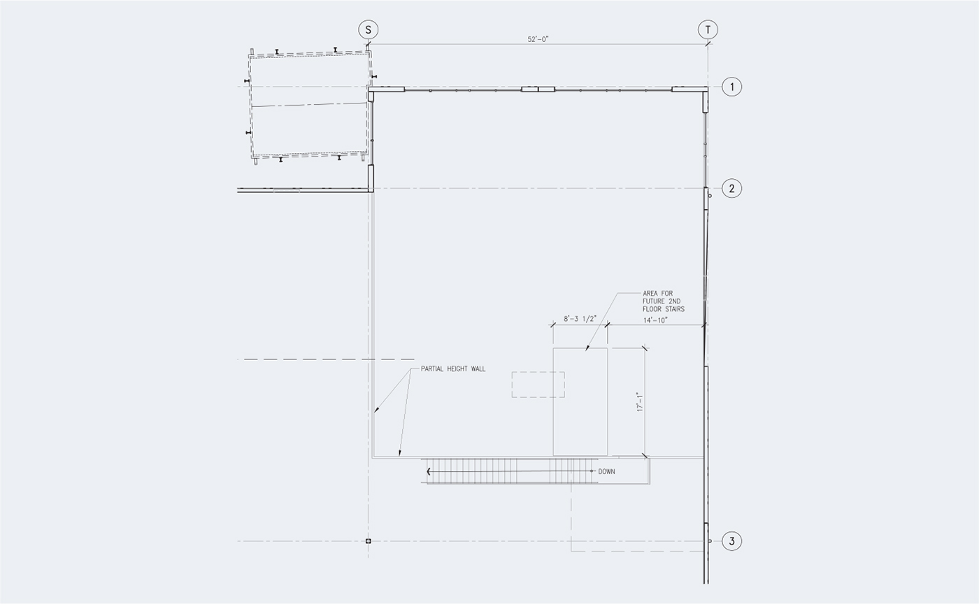
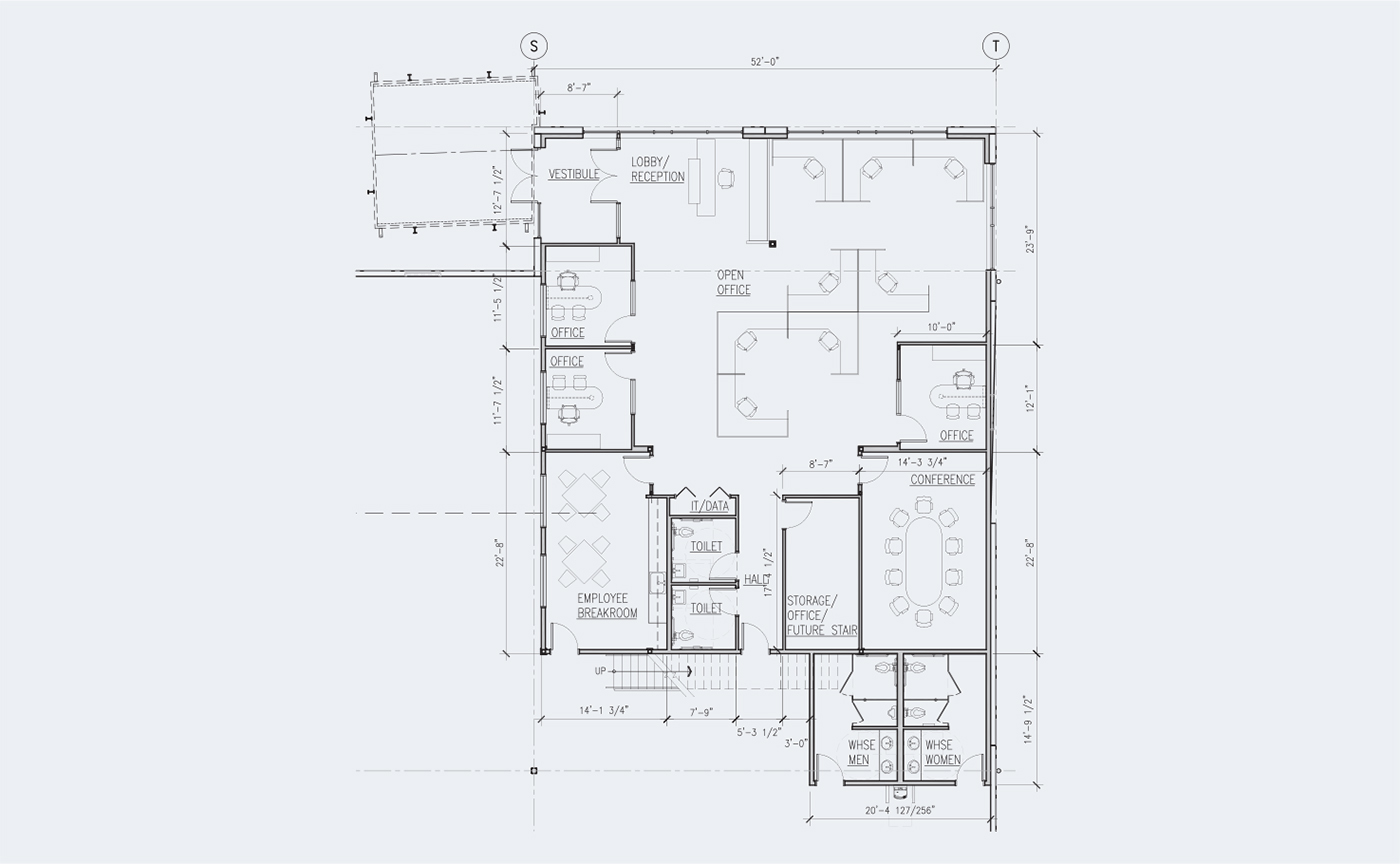
The property boasts a 130-foot truck court and excellent SR-512 exposure, ensuring superior accessibility. Zoned ECOR, the building is divisible to approximately 50,000 SF, providing flexibility for various tenant needs. It includes 3,315 SF of office space (expandable) and a 2,966 SF mezzanine, supporting both administrative and operational functions.




calendar_month

Now
Available

photo_size_select_small

±13.82 AC
Site Area

domain

±205,390 SF
Building Area

garage

130
Parking Spaces

warehouse

50DH / 2GL
Door Positions

local_shipping

24
Trailer Parking




Potential Building Division



Suite 100

  • 48,106 SF total area
  • BTS office area
  • 13 dock-high doors
  • 1 grade-level door
  • 36’ clear height
  • 52’ x 52.4’ column spacing

Suite 110

  • 47,037 SF total area
  • BTS office area
  • 8 dock-high doors
  • 36’ clear height
  • 52’ x 52.4’ column spacing

Suite 120

  • 47,477 SF total area
  • BTS office area
  • 13 dock-high doors
  • 36’ clear height
  • 52’ x 52.4’ column spacing

Suite 130

  • 62,807 SF total area
  • 3,315 SF office area
  • 16 dock-high doors
  • 1 grade-level door
  • 36’ clear height
  • 52’ x 52.4’ column spacing

Office

Mezzanine

Pierce County Economic Development Incentives

WA State Department of Revenue Warehouse Sales Tax Exemption - 50% exemption from states portion (6.5%) of retail sales or use tax paid on purchases and installation of material-handling and racking equipment. Tacoma Public Utilities - Incentives to reduce operating costs of energy-efficient improvements. City of Tacoma B&O Tax Credit for new job creation.

5

Miles to I-5

9

Miles to Port of Tacoma

8

Miles to SR-167

1

Mile to SR-512A